Civil and Structural Engineers

Parnell House - Victoria, London

Click on any picture to enlarge

Parnell House - Victoria

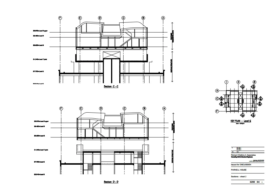
Parnell House is a nine storey office building occupying a site area of approximately 12,000 m2. It was constructed in reinforced concrete with stone cladding and is supported at basement level by a system of piled foundations.

The structure above ground level is based upon the use of a system of post-tensioned cables, cast within each of the individual floor slabs.

This method of construction applies a compressive force to the in-situ concrete in order to increase the loading capacity of the floor slabs and allow for a column-free floor area.

 


 

return to projects